
Bénesse-Maremne
(40230)
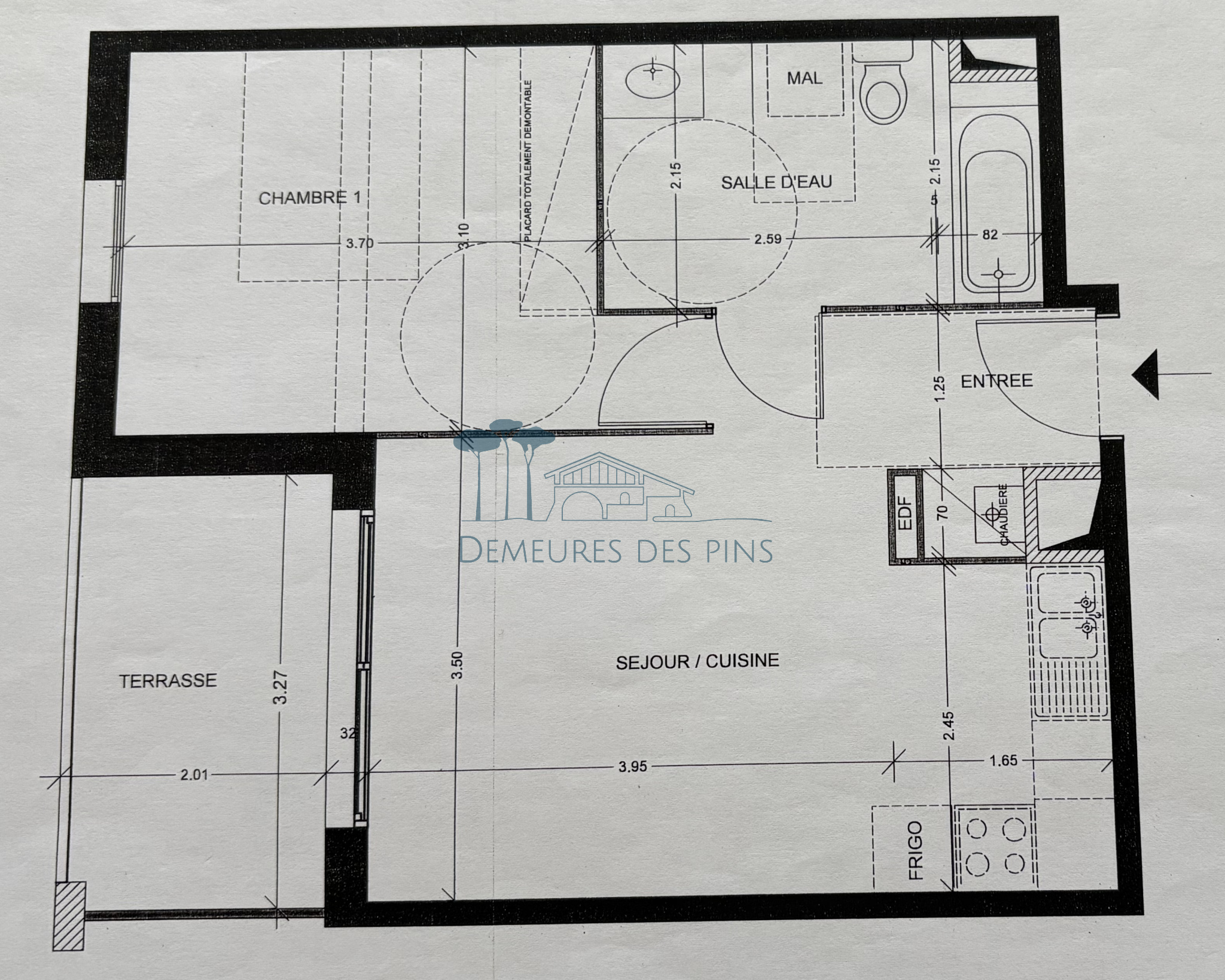
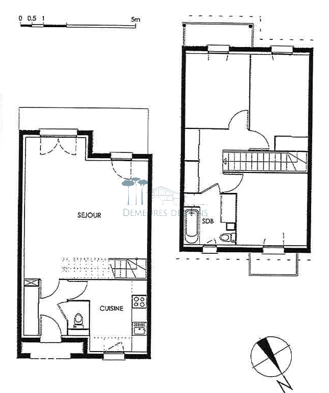
5 pièces - 160 m²
Belle maison rénovée sans vis à vis
1 349 985 €
Ref : AN55